1.5
1
1
40 m2
Stanovi
Jednouiposoban stan u novoj zgradi u blizini restorana Paris lux
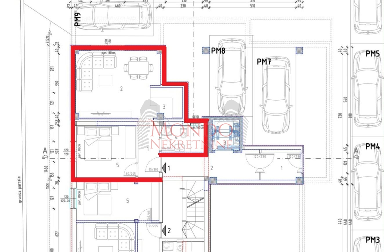
Stan je u izgradnji nove stambene zgrade na prizemlju sa liftom povrsine od 39.51m2 sa grejanjem na struju. Na podu ce biti bukov ili hrastov parket prve klase, pvc stolarija. Keramika takodje prve klase.
Stan se sastoji od dnevnog boravka sa kuhinjom i trpezarijom, dve spavace sobe, hodnika i kupatila.
Zavrsetak radovova Septembra 2026.god
Mogucnost kupovine parking mesta u dvoristu zgrade.
Kupovina iskljucivo putem gotovine.
Za više informacija slobodno pozovite na telefon.
Ovo je samo deo naše ponude, slične ponude kao što je ova možete pogledati na našem sajtu.
Agencija Mondo Nekretnine, reg. br. 714.